Premiera Archicada 29 przyniosła architektom nowe możliwości projektowe – jeszcze większą precyzję, wydajność i komfort pracy. Zespół Multibim, bazując na tych zmianach, poszedł o krok dalej i stworzył nową generację Multibim Tools. Te nowoczesne, multifunkcyjne narzędzia powstały z myślą o praktycznym wsparciu projektantów – automatyzują powtarzalne czynności, zwiększają precyzję analiz i ułatwiają codzienną pracę w Archicadzie.

Filozofia Multibim jest prosta: tworzymy technologie, które pracują dla Ciebie. Dostarczamy narzędzia – rozwiązania, które rozwijają możliwości Archicada i każdy architekt może wykorzystać według swoich indywidualnych potrzeb. Multibim Tools powstają w ścisłej współpracy z architektami i odpowiadają na realne wyzwania biur projektowych.
W nowej generacji Multibim Tools rozbudowaliśmy część funkcjonalności, a także dodaliśmy nowe narzędzia, które ułatwiają wiele uciążliwych procesów w projektowaniu. Zobacz, jak nowa generacja Tools ułatwia codzienna pracę architektów.
Multibim STANDARD to kompletna konfiguracja Archicada, dzięki której możesz rozpocząć pracę natychmiast – bez czasochłonnego ustawiania środowiska. Zawiera ponad 1500 gotowych konfiguracji obiektów, narzędzi i widoków, dzięki czemu szybko wdrożysz się w pracę z programem, a cały proces projektowy stanie się spójny i przewidywalny.
STANDARD porządkuje sposób pracy w biurze – na wszystkich stanowiskach możesz korzystać z tych samych ustawień, parametrów i widoków, co gwarantuje jednolity styl dokumentacji i płynną współpracę zespołu. Dzięki gotowym konfiguracjom skupiasz się na projektowaniu, zamiast tracić czas na żmudne ustawienia narzędzi.
Dodatkowo sprawnie utworzysz i opublikujesz dokumentację w oparciu o przygotowane widoki, zautomatyzowaną teczkę arkuszy i zestawy publikacji, co znacząco skraca czas przygotowania rysunków.
Korzyści jakie Multibim STANDARD daje architektom:
Po lewej Archicad, po prawej Archicad od Multibim
Multibim SUN to nowoczesne narzędzie, które całkowicie zastępuje tradycyjną linijkę słońca, wykorzystując model 3D Archicada, dokładne dane geograficzne oraz automatyczne obliczenia. Analizę nasłonecznienia wykonasz jednym kliknięciem – bez ręcznych pomiarów i ryzyka błędów.
Otrzymujesz precyzyjne wyniki, które pomagają podejmować właściwe decyzje projektowe oraz spełniać wymagania prawne. Multibim SUN wspiera również tworzenie dokumentacji – wyniki możesz prezentować w dowolnej formie: w rysunkach, zestawieniach czy kolorowych widokach.
Pomaga w tym dedykowana etykieta Multibim SUNCHART, która automatycznie odczytuje dane analizy i przedstawia je w formie graficznej.
Nowa generacja Multibim SUN działa teraz jeszcze szybciej – została zoptymalizowana pod kątem obliczeń dużych projektów, dzięki czemu możesz przeanalizować nawet 1500 okien w zaledwie 10 minut.
Korzyści jakie Multibim SUN daje architektom:
Nasze darmowe narzędzie Multibim SUNLIGHT pozwala na precyzyjne sterowanie datą i godziną oświetlenia w oknie 3D Archicada z podglądem na żywo. Świetnie sprawdza się w prezentacji wyników analizy nasłonecznienia narzędziem SUN.
Korzyści jakie Multibim SUNLIGHT daje architektom:
Narzędzie Multibim SITE automatyzuje bilansowanie zagospodarowania terenu oraz oblicza chłonność działek. Wszystkie wskaźniki urbanistyczne aktualizują się automatycznie wraz ze zmianami w projekcie.
Multibim SITE przenosi cały etap bilansowania do środowiska Archicada. Eliminujesz błędy, oszczędzasz czas i unikasz powtarzalnych kalkulacji. Możesz tworzyć różne konfiguracje projektu i łatwo je porównywać, a wszystkie parametry przeliczają się automatycznie po każdej zmianie w modelu.
SITE to gwarancja większej precyzji i pewności, że Twój projekt pozostaje zgodny z zapisami planu miejscowego.
Korzyści jakie Multibim SITE daje architektom:
Multibim SHAPE umożliwia szybkie tworzenie oznaczeń graficznych projektu zagospodarowania terenu zgodnych z polskimi wymaganiami.
Narzędzie eliminuje ręczne, powtarzalne czynności, zapewniając czytelny, estetyczny i formalnie poprawny rysunek – szybko wstawisz potrzebne linie, obrysy, wypełnienia i automatycznie ponumerujesz narożniki. Dzięki SHAPE otrzymasz także automatyczną legendę i poprawnie wyeksportujesz plik DWG.
Korzyści jakie Multibim SHAPE daje architektom:
Multibim LABEL to narzędzie inteligentnej etykiety, która automatycznie dopasowuje swój wygląd i zawartość do stylu widoku, na którym pracujesz. Tworzona dokumentacja pozostaje spójna i uporządkowana, a Ty oszczędzasz czas, unikając powielania tych samych informacji w różnych etykietach.
Korzyści jakie Multibim LABEL daje architektom:
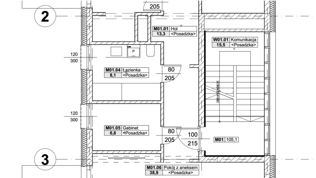
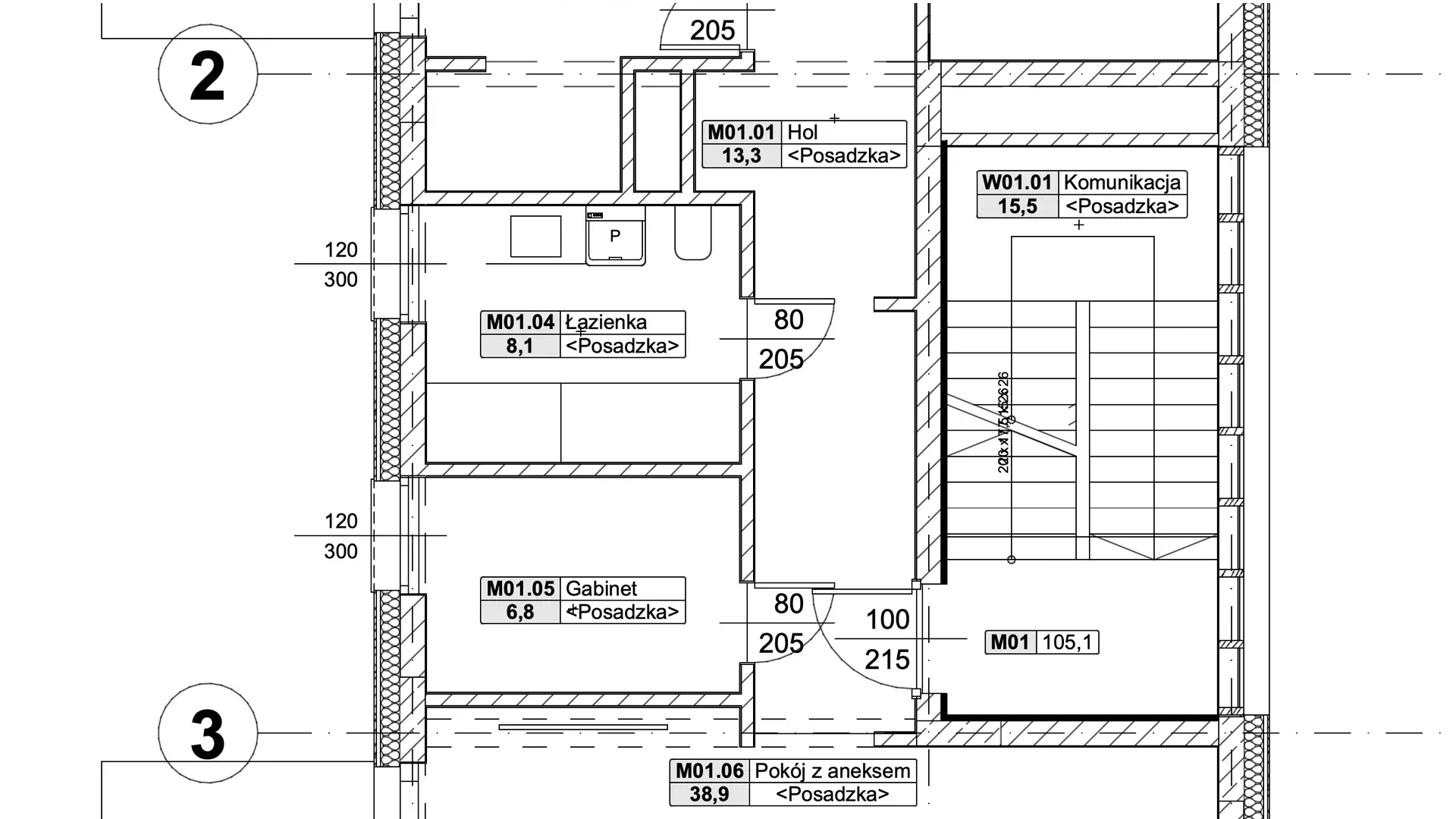
W modelach o dokładności budowlanej strop może być pojedynczą strukturą, ale na etapie wykonawczym pojawia się pytanie – jak odwzorować różne warstwy wykończenia posadzek i sufitów, zachowując spójność oraz elastyczność modelu?
Multibim ZONES pozwala łatwo tworzyć osobne struktury wykończeń dla pomieszczeń na podstawie stref oraz wygodnie nimi zarządzać. Dzięki temu możesz sprawnie tworzyć i modyfikować posadzki oraz sufity – bez konieczności ręcznego budowania wielu wariantów modelu. Przy przejściu między etapami projektu możesz wykorzystać dodatek Multibim PARTS, aby rozdzielać warstwy i zachować pełną kontrolę nad detalami.
Dodatkowo, ZONES umożliwia zliczanie powierzchni lokali mieszkalnych lub użytkowych, a ich prezentację na rzucie ułatwia Multibim LABEL.
Korzyści, jakie Multibim ZONES daje architektom:
Narzędzie Multibim BASELINE pozwala sprawniej rozwiązywać detale połączeń elementów i umożliwia natychmiastową korektę połączeń ścian, eliminując ręczne poprawki.
Korzyści jakie Multibim BASELINE daje architektom:
Podczas opracowywania dokumentacji wykonawczej i pracy w kontakcie z budową często liczy się precyzja – dokładne obliczanie warstw materiałów, dopracowanie detali połączeń oraz tworzenie widoków odpowiadających etapom prac. Dotychczas wymagało to czasochłonnego modelowania przegród warstwa po warstwie lub ich dzielenia w sposób niezgodny z logiką budowy.
Dzięki Multibim PARTS w prosty sposób rozdzielisz przegrody na pojedyncze warstwy i edytujesz każdą z nich osobno, zyskując pełną kontrolę nad modelem.
Korzyści jakie Multibim PARTS daje architektom:
Multibim Tools to więcej niż dodatki – to filozofia pracy, w której stawiamy na rozwiązania realnie ułatwiające życie projektantom. Dzięki nim Archicad staje się bardziej intuicyjny, zgodny z polskimi normami i po prostu wygodniejszy. Naszym celem jest, by technologia pracowała dla Ciebie – a Ty mógł skupić się na tym, co najważniejsze: projektowaniu!
Pamiętaj, że posiadając Kartę Multibim, zyskujesz dostęp do narzędzi STANDARD, SHAPE, ZONES, BASELINE, LABEL oraz darmowego SUNLIGHT.
Zobacz wszystkie benefity Karty Multibim.

Wojciech Remer
w.remer@multibim.pl